Hansaviimistluse OÜ on uue aasta algusega käivitanud oma seitsmenda elukondliku arendusprojekti.
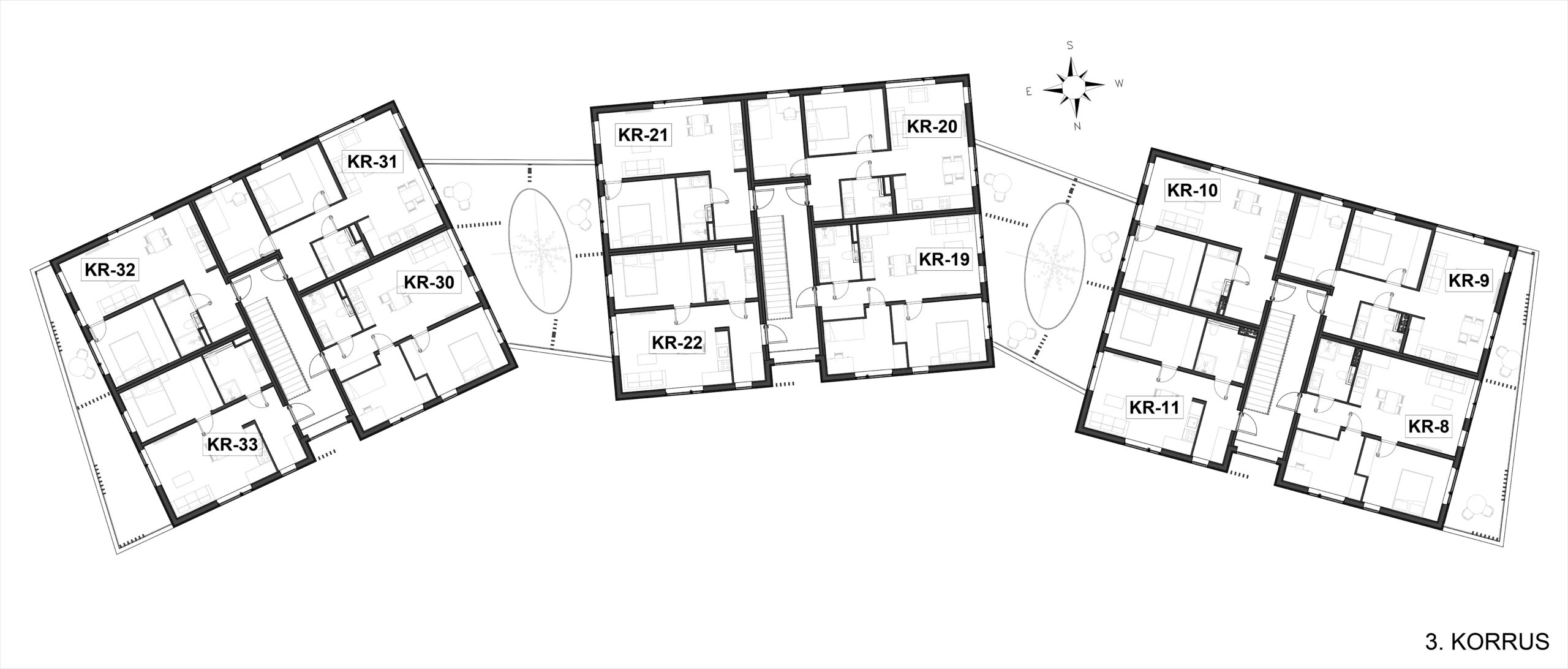
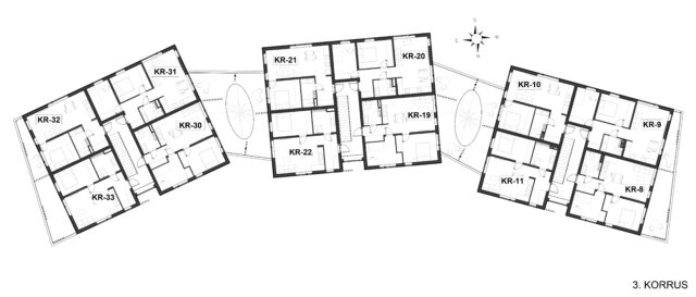
Ravila mnt 12 asuv arendus on Vägeva Vee Kose alevikus ainulaadne – tegemist on ainsa jõeäärse korterelamu arendusega piirkonnas. Kortermajal on kolm trepikoda, igas trepikojas 11 korterit ning korterid on kahe- ja kolmetoalised.

Uus arendus!
Vägeva Vee Kose keskuses
Valmib kevad 2027
Ravila mnt 12
Põhjused Ravila mnt 12 korteri ostmiseks
- A-energiaklassi maasoojuspump, õhk-vesi soojuspump ja päikesepaneelid koos akupangaga = madalad energiakulud.
- Kõikide rõdud ja terrasside paiknemisel on arvestatud päikese liikumisega.
- Üle jõe keskusesse saamiseks ehitatakse rippsild.
- Turvalisus: autovaba ja kaunilt haljastatud hooviala, millel on lehtla, puhkealad ja mänguväljak.
- Butiik korterelamu, kus ühes trepikojas on vaid 11 korterit.
- Lisaks iga korteriga kaasnevale privaatsele panipaigale majas sees, on õues ühiselt kasutatav hoiuruum ja rohkelt parkimiskohti külalistele.
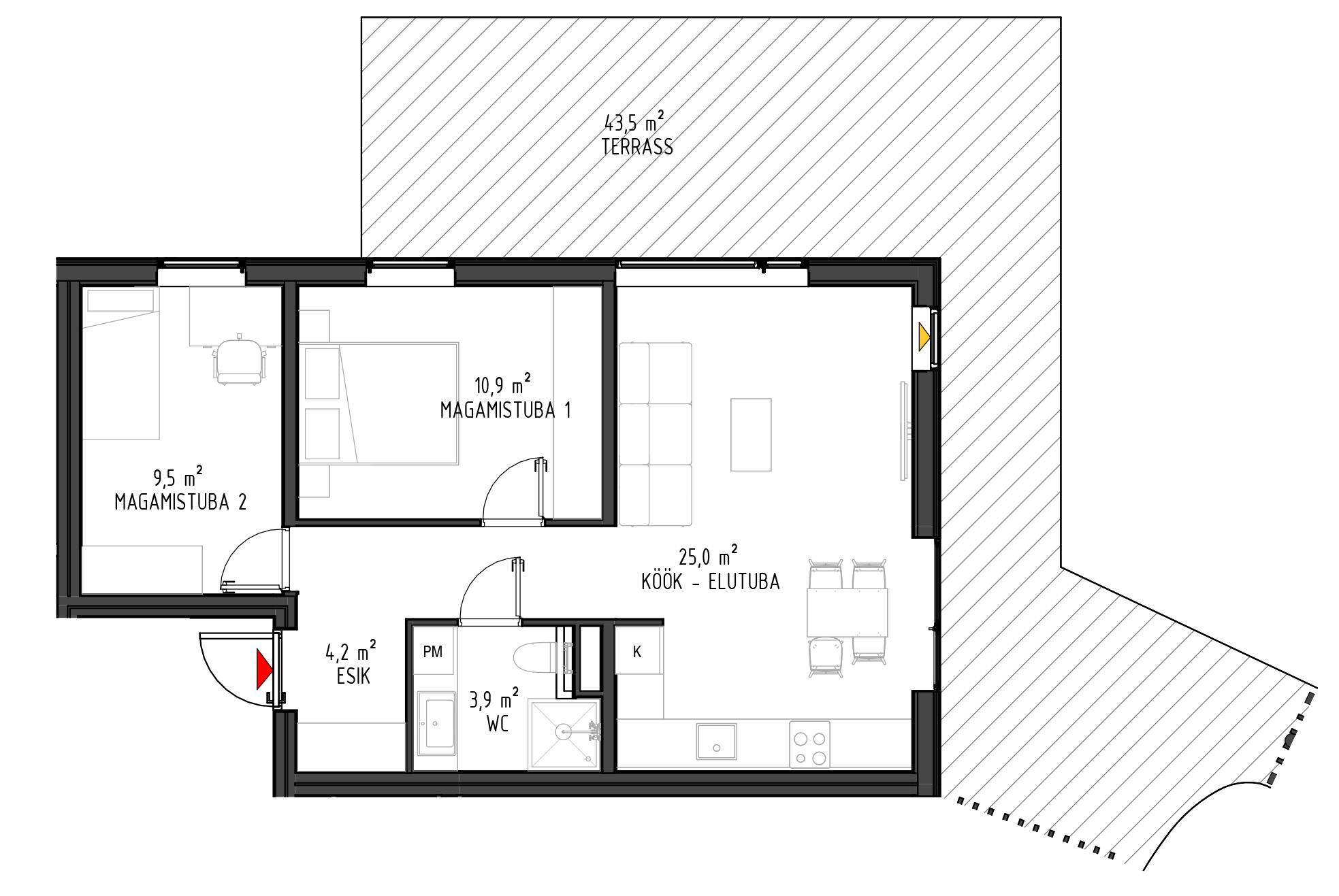
Hinnad ja plaanid
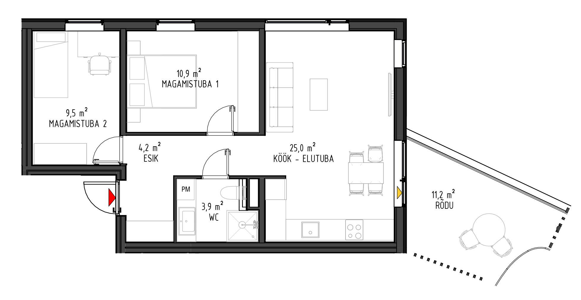
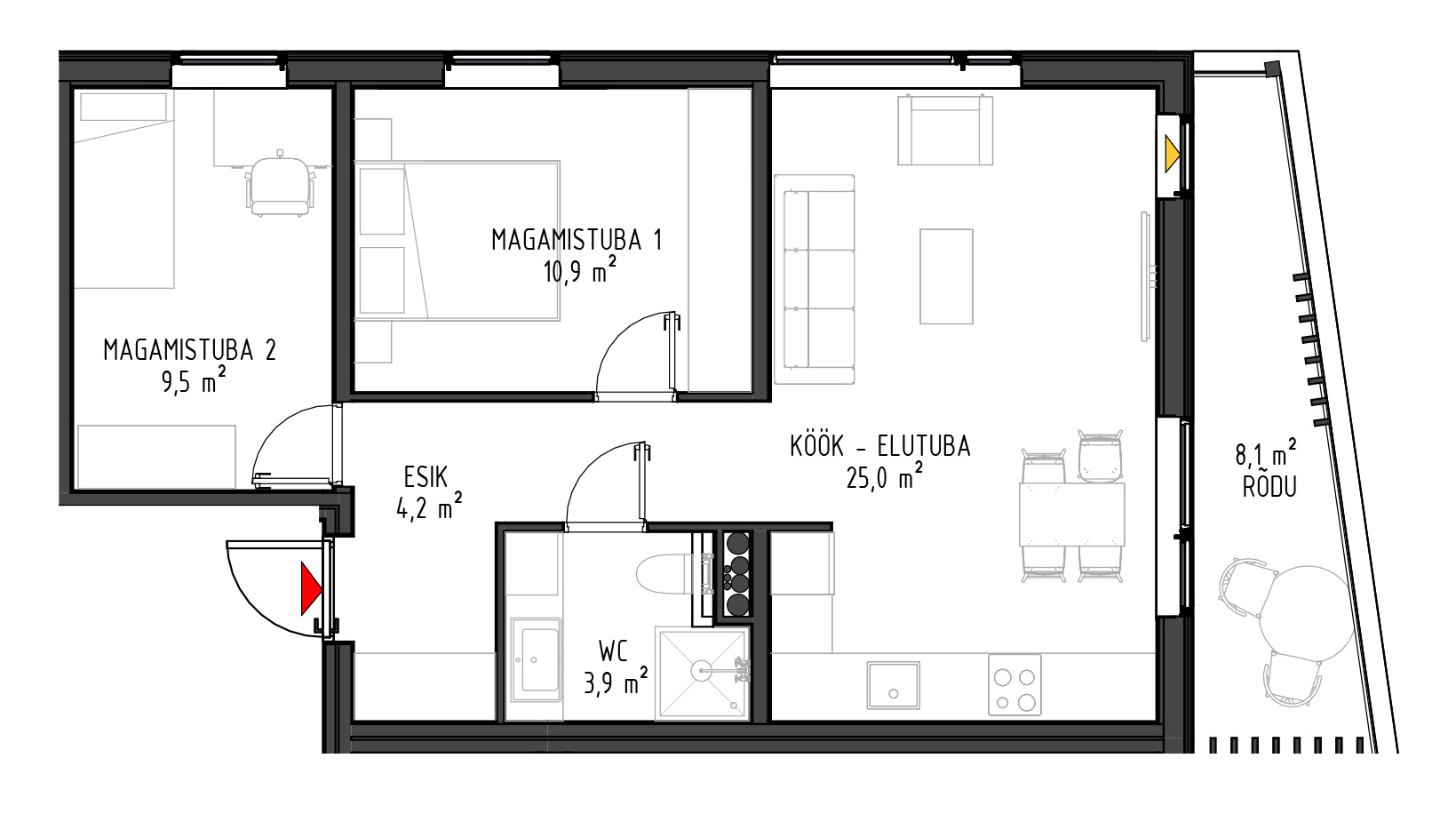
Ravila mnt 12 korterelamu on kavandatud perekeskse ja funktsionaalse elukeskkonnana. Korterite planeeringud on läbimõeldud ning hoone liigendatud selliselt, et korteritesse jõuaks võimalikult palju päevavalgust ja avaneksid vaated erinevatesse ilmakaartesse.
Kõikidel esimese korruse korteritel on terrass ning teise ja kolmanda korruse korteritel on rõdud. Korterite juurde kuuluvad panipaigad ja parkimiskohad vastavalt erikasutuskorrale. Hoone paikneb mitmetasandilisel kinnistul, kus on säilitatud ja täiendatud olemasolevat haljastust ning rajatud ühiskasutatavad välialad.
Korterite hinnad ja saadavus on toodud allolevas tabelis.
Esimene trepikoda
| Korrus | Korter | Tube | Eluruum (m²) | Panipaik (m²) | Terrass/ rõdu (m²) | Kogu pind (m²) | Hind |
|---|---|---|---|---|---|---|---|
| 1 | 1Vaata plaani | 3 | 51.40 | 2.00 | 18.30 | 71.70 | 195 000 € |
| 1 | 2Vaata plaani | 3 | 53.50 | 2.00 | 33.50 | 89.00 | 195 000 € |
| 1 | 3Vaata plaani | 2 | 42.60 | 2.00 | 39.00 | 83.60 | 165 000 € |
| 2 | 4Vaata plaani | 3 | 51.40 | 2.00 | 16.20 | 69.60 | 195 000 € |
| 2 | 5Vaata plaani | 3 | 53.50 | 2.00 | 8.10 | 63.60 | BRONEERITUD |
| 2 | 6Vaata plaani | 2 | 42.60 | 2.20 | 9.70 | 54.50 | 165 000 € |
| 2 | 7Vaata plaani | 2 | 42.70 | 2.20 | 9.90 | 54.80 | 165 000 € |
| 3 | 8Vaata plaani | 3 | 51.10 | 2.20 | 16.20 | 69.50 | 195 000 € |
| 3 | 9Vaata plaani | 3 | 53.50 | 2.20 | 8.10 | 63.80 | BRONEERITUD |
| 3 | 10Vaata plaani | 2 | 42.60 | 2.20 | 9.70 | 54.50 | BRONEERITUD |
| 3 | 11Vaata plaani | 2 | 42.60 | 1.90 | 9.90 | 54.40 | 165 000 € |
Teine trepikoda
| Korrus | Korter | Tube | Eluruum (m²) | Panipaik (m²) | Terrass/ rõdu (m²) | Kogu pind (m²) | Hind |
|---|---|---|---|---|---|---|---|
| 1 | 12Vaata plaani | 3 | 51.40 | 2.00 | 13.20 | 66.60 | 195 000 € |
| 1 | 13Vaata plaani | 3 | 53.50 | 2.00 | 43.50 | 99.00 | 195 000 € |
| 1 | 14Vaata plaani | 2 | 42.60 | 2.00 | 39.10 | 83.70 | 165 000 € |
| 2 | 15Vaata plaani | 3 | 51.40 | 2.00 | 12.90 | 66.30 | 195 000 € |
| 2 | 16Vaata plaani | 3 | 53.50 | 2.00 | 11.20 | 66.70 | BRONEERITUD |
| 2 | 17Vaata plaani | 2 | 42.60 | 2.20 | 9.70 | 54.50 | 165 000 € |
| 2 | 18Vaata plaani | 2 | 42.70 | 2.20 | 9.90 | 54.80 | 165 000 € |
| 3 | 19Vaata plaani | 3 | 51.10 | 2.20 | 12.90 | 66.50 | 195 000 € |
| 3 | 20Vaata plaani | 3 | 53.50 | 2.20 | 11.20 | 66.90 | 195 000 € |
| 3 | 21Vaata plaani | 2 | 42.60 | 2.20 | 9.70 | 54.50 | 165 000 € |
| 3 | 22Vaata plaani | 2 | 42.60 | 1.90 | 9.90 | 54.40 | 165 000 € |
Kolmas trepikoda
| Korrus | Korter | Tube | Eluruum (m²) | Panipaik (m²) | Terrass/ rõdu (m²) | Kogu pind (m²) | Hind |
|---|---|---|---|---|---|---|---|
| 1 | 23Vaata plaani | 3 | 51.40 | 2.00 | 13.20 | 66.60 | 195 000 € |
| 1 | 24Vaata plaani | 3 | 53.50 | 2.00 | 43.50 | 99.00 | BRONEERITUD |
| 1 | 25Vaata plaani | 2 | 42.60 | 2.00 | 26.00 | 70.60 | BRONEERITUD |
| 2 | 26Vaata plaani | 3 | 51.40 | 2.00 | 12.90 | 66.30 | 195 000 € |
| 2 | 27Vaata plaani | 3 | 53.50 | 2.00 | 11.20 | 66.70 | BRONEERITUD |
| 2 | 28Vaata plaani | 2 | 42.60 | 2.20 | 8.70 | 53.50 | BRONEERITUD |
| 2 | 29Vaata plaani | 2 | 42.70 | 2.20 | 15.60 | 60.40 | 165 000 € |
| 3 | 30Vaata plaani | 3 | 51.10 | 2.20 | 12.90 | 66.50 | 195 000 € |
| 3 | 31Vaata plaani | 3 | 53.50 | 2.20 | 11.20 | 66.90 | BRONEERITUD |
| 3 | 32Vaata plaani | 2 | 42.60 | 2.20 | 11.20 | 56.00 | 165 000 € |
| 3 | 33Vaata plaani | 2 | 42.60 | 1.90 | 15.60 | 60.10 | 165 000 € |
Siseviimistlus
Müügiinfo/kontakt
Ravila mnt 12 korterelamu ehitus on alanud ning korterid on valmis üle andmiseks kevadel 2027.
Korteri broneerimine toimub kirjaliku kokkuleppe alusel peale müügipakkumise saamist. Broneerimine annab huvilisele õiguse sõlmida võlaõiguslik leping kokkulepitud tähtaja jooksul. Broneerimistingimused ja broneerimistasu täpsustatakse müügiesindaja kaudu.
Müügilepingu, ehk notariaalse võlaõigusliku lepingu sõlmimisel tasutakse ettemaksuna 15% korteri ostuhinnast. Asjaõiguslik leping sõlmitakse pärast hoone valmimist. Asjaõiguslepingu sõlmimisel tasutakse ülejäänud 85% ostuhinnast. Korteri valdus antakse ostjale üle üleandmis-vastuvõtmisakti alusel.
Hinna sees
Korteri müügihind sisaldab korteri valmidust vastavalt siseviimistluse spetsifikatsioonile ja hoone projektdokumentatsioonile, panipaika, parkimiskohta ning rõdu või terrassi vastavalt erikasutuskorrale. Hinnas sisaldub käibemaks.
Hinna sees ei sisaldu
Korteri müügihind ei sisalda notaritasusid, riigilõive ega tasusid side-, valve- või muude täiendavate teenustega liitumise eest.
Garantii
Arendaja annab korterile ja hoonele seadusest tuleneva kaheaastase garantii.
Müüki korraldab LAAM Kinnisvara.
Asukoht
Kose aleviku keskuse vahetu lähiümbrus – Ravila mnt 12, Kose alevik
Kose alevik asub Pirita jõe orus Harju maakonnas ning seal elab ligikaudu 2000 elanikku. Tegemist on terviklikult välja arendatud alevikuga, kus on olemas kõik igapäevaeluks vajalikud teenused ja taristu. Aleviku kompaktne ülesehitus võimaldab korraldada igapäevaelu ilma pideva autokasutuseta.
Ravila mnt 12 kinnistu eristub oma vahetu jõeäärse asukoha poolest. Selline kombinatsioon – keskuse lähedus ja otsene looduskeskkond – on Kose alevikus ainulaadne.
Vägeva Vee Kose vallas elades
Valid elukvaliteedi, mitte kompromissi
Kose alevik pakub tasakaalu, mida Tallinna vahetu lähiümbrus üha harvem võimaldab: toimiv taristu, rahulik elukeskkond ja otsene looduslähedus – ilma et igapäevaelu muutuks ebamugavaks.
1. Rohkem ruumi ja vaikust
Tallinna linnamüra, tihe liiklus ja pidev visuaalne koormus on paratamatu. Kosel on elukeskkond rahulikum ja rohelisem ning liiklus hõredam, mis mõjutab otseselt igapäevast heaolu ja stressitaset.
2. Kõik oluline on olemas
Erinevalt paljudest väiksematest asulatest on Kose alevik terviklikult välja arendatud. Olemas on kool, lasteaed, spordikeskus, kultuurimaja, poed ja tervishoiuteenused. Igapäevaelu ei eelda pidevat sõitu linna.
3. Mõistlik kaugus Tallinnast
Tallinn jääb ligikaudu 25-minutilise autosõidu kaugusele. See võimaldab töötada pealinnas, kuid elada keskkonnas, kus õhtud ja nädalavahetused on rahulikumad ja looduskesksemad.
4. Parem keskkond peredele
Kompaktne alevik, lühikesed vahemaad ja turvalisem liikluskeskkond loovad paremad eeldused lastega peredele. Lapsed saavad iseseisvamalt liikuda ning igapäevane logistika on lihtsam.
5. Loodus igapäevaelu osana
Pirita jõe lähedus, jalutusrajad ja rohealad ei ole eraldi sihtkoht, vaid osa igapäevasest elust. See on oluline vahe võrreldes tiheda linnaruumi või anonüümsete magalarajoonidega.
6. Vähem anonüümsust, rohkem kogukonda
Kosel ei ole kogukond turunduslik loosung. Inimesed tunnevad üksteist, suhtlus tekib loomulikult ning elukeskkond ei ole killustunud. See loob turvalisema ja inimsõbralikuma elutunde.
Kokkuvõte
Tallinna kõrvalt Kosele kolimine ei tähenda mugavustest loobumist. Vastupidi – see tähendab elukvaliteedi paranemist: rohkem ruumi, rohkem vaikust ja rohkem aega iseendale ja perele, säilitades samal ajal hea ühenduse pealinnaga.
Ehitusinfo
Hansaviimistlusele on omane roll olla teerajaja kaasaegsete korterelamute arendamisel väljaarenenud alevike keskustes. Ettevõte on olnud esimeste kaasaaegste korterelamute arendajate seas Jüri ja Lagedi alevikes. Ravila mnt 12 on selle loogiline jätk – kvaliteetne ja läbimõeldud elukeskkond Kose aleviku südames.
Üldinfo
Ravila mnt 12 rajatav hoone on kolmekorruseline korterelamu, mille kolm osa on ühendatud rõdudega, tagades õhulise visuaalse mulje, nagu tegemist oleks kolme kõrvuti paikneva butiikkorterelamuga, mille ühes trepikojas on vaid 11 korterit.
Hoone kandekonstruktsioonid ja vaheseinad on puitelement tehases eelnevalt toodetud ja kontrollitud. Vundament on projekteeritud raudbetoonist plaatvundamendina.
Välispiirded on projekteeritud energiatõhusaks, õhu- ja helipidavaks. Välisseinte soojusläbivus on kuni 0,16 W/(m²K), katuse soojusläbivus kuni 0,11 W/(m²K) ning põranda soojusläbivus kuni 0,10 W/(m²K). Soojustusmaterjalina kasutatakse mineraalvilla. Akendel on kolmekordsed klaaspaketid ning akende maksimaalne soojusläbivus on 0,8 W/(m²K).
Hoone fassaad on viimistletud puitlaudisega, kasutades nii vertikaalset kui ka diagonaalset puitvoodrit. Värvilahendus on helehall ja soe pruun lasuur. Rõdude ja terrasside privaatsus on lahendatud puitribistikuga. Rõdupiirded on metallist ning akna- ja ukseraamid tumehallis toonis.
Hoonele on projekteeritud lamekatus, mis on soojustatud mineraalvillaga ning kaetud PVC rullmaterjalist katusekattega. Katuse kalle on lahendatud vee äravoolu tagamiseks. Katusele on ette nähtud tehnilised läbiviigud ja hooldusvõimalused vastavalt normidele.
Küte ja energiatõhusus
Hoone soojusvarustus on lahendatud kaasaegse kombineeritud küttesüsteemina, kus kasutatakse maasoojuspumpasid ja õhk-vesi soojuspumpasid. Korterites on termostaadiga reguleeritav vesipõrandaküte, mis tagab ühtlase soojusjaotuse ning võimaldab igas ruumis temperatuuri eraldi reguleerida. Hoone katusele paigaldatakse päikesepaneelid, mis on suunatud optimaalse nurga all päikeseenergia tootmiseks. Toodetud elektrienergiat kasutatakse hoone tehnosüsteemide ja üldalade energiavajaduse katmiseks. Süsteemi täiendavad energiasalvestusakud (akupank), mis võimaldavad päikesepaneelide toodetud elektrienergiat salvestada ja kasutada ajal, mil päikeseenergia tootmine on väiksem. Selline lahendus aitab tasakaalustada energiatarbimist, vähendada elektrivõrgust ostetava energia hulka ning hoida hoone püsikulud madalamal.
Ventilatsioon
Igas korteris on eraldi mehaaniline sissepuhke-väljatõmbe ventilatsioonisüsteem soojustagastusega. Ventilatsiooni soojustagastuse kasutegur on üle 80%. Ventilatsiooniagregaadid paiknevad korterite vannitubade lae taga ning süsteem on projekteeritud tagama nõuetekohase siseõhu kvaliteedi.
Veevarustus ja kanalisatsioon
Hoone on ühendatud ühisveevärgi ja -kanalisatsiooniga. Soe tarbevesi toodetakse maasoojus ja õhk-vesipumba boileri abil. Sademevesi kogutakse ja immutatakse kinnistul asuvasse imbtunnelisse, vältides vee juhtimist naaberkinnistutele või ühiskanalisatsiooni.
Elektri- ja sideühendused
Hoone elektrivarustus on lahendatud võrguühendusena. Igal korteril on oma jaotuskilp. Parkimisalale on kavandatud kaabelvalmidus elektriautode laadimiseks. Korterid on ühendatud kiudoptilise Telia interneti ühendusega.
Tuleohutus
Hoone kuulub tulepüsivusklassi TP2. Korterid, trepikojad ja tehnoruumid on eraldatud tuletõkkesektsioonideks. Korterite vahelised seinad ja trepikojad vastavad tulepüsivusklassile EI60. Hoones on ette nähtud suitsuandurid ning evakuatsiooniteed vastavad kehtivatele tuleohutusnõuetele.
Rippsild ja jõeäärne ala
Kinnistule on kavandatud rippsild, mis loob jalakäijatele ja ratturitele otsese ning turvalise ühenduse Kose aleviku keskuse ja kinnistu vahel. Jõeäärne ala on avatud ja korrastatud.
Hoovialale on ette nähtud laste mänguväljak, puhkealad ning lehtla. Mänguväljak ja puhkealad paiknevad hoonest eemal, et tagada turvalisus ja privaatsus. Lehtla on mõeldud ühiskasutuseks.











